About Tim Rymill
I am an architectural designer specializing in residential architecture with 30 years experience in the construction industry.
From domestic refurbishments and extensions, granny annex, loft and barn conversions to individually tailored houses and select housing developments.
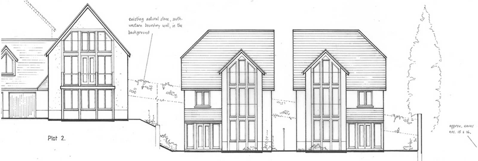
Bespoke traditional hand drawn pencil/ink design & working drawings ( PDF’s available ).
Ethos
Every client, design and project given individual personal attention in order to create imaginative, practical, comfortable living spaces. Site specific design, with the best use of space and due consideration to its surroundings, views, orientation and gardens.
It’s not just a building, it’s a home




